Skip to main content

Progetti

PALAZZINA MASIERI

PALAZZINA MASIERI

RESTAURO DELLA PALAZZINA MASIERI

Cultura | Restauro | Uffici

PALAZZINA MASIERI RESTORATION PROJECT

Tema del progetto: Cultura | Restauro | Uffici

Anno del progetto: 2023-2024

Luogo: Dorsoduro 3900, Venezia

Proprietario dell'edificio: Fondazione Angelo Masieri

Cliente: Heritage Asset Management | Galerie Negropontes

Dimensione dell'edificio: 450 mq

Progetto: Barman Architects

Team di progetto: Roberta Bartolone, Giulio Mangano

Imprese: Giuseppe Tonini, Elisabetta Longega, Enrico Trolese, G.R.C. Gruppo Restauro Conservativo, Paolo Giabardo, Vianello srl, CIEM

Illuminazione: Linea Light Group, Stilnovo

Arredi: Fantin, Lamm, Vipp

Stato: Progettazione e restauro completati

Fotografo: Fabio Purgino

IL NOSTRO OBIETTIVO

Nel 2023, la Fondazione Angelo Masieri ha avviato una partnership con Heritage Asset Management e Galerie Negropontes per riattivare l'edificio e il programma culturale della Fondazione.

I lavori di ristrutturazione architettonica riguardano il restauro di parte degli intonaci e dei pavimenti interni, la manutenzione dei serramenti in legno e il miglioramento degli impianti di illuminazione e tecnologici.

Lo studio Barman Architects ha diretto il progetto di restauro e la direzione lavori. Una volta completati i lavori, la Palazzina Masieri ospiterà mostre temporanee ed eventi culturali.

  • Palazzinamasieri 01

  • Palazzinamasieri 02

  • Palazzinamasieri 03

  • Palazzinamasieri 04

  • Palazzinamasieri 06

  • Palazzinamasieri 05

  • Pallazzina Masieri 07

IL CONTESTO

La Fondazione Masieri è stata istituita in memoria di Angelo Masieri, collaboratore di Carlo Scarpa, tragicamente scomparso nel 1952. Il memoriale fu costruito su un tipico lotto triangolare veneziano all'angolo tra il Canal Grande e il Rio Nuovo: nell'area sorgeva un palazzo veneziano di tre piani che avrebbe dovuto essere sostituito da un nuovo edificio commissionato a Frank Lloyd Wright. Wright progettò una residenza e un centro studi per studenti di architettura, ma il progetto fu bocciato per proteggere l'aspetto storico della città dal cambiamento.

Nel 1968, Scarpa immaginò di realizzare il Memoriale Masieri rimuovendo le pareti interne e i pavimenti del palazzo originale, lasciando le mura esterne storiche come un involucro all'interno del quale costruire spazi interamente moderni. L'edificio attuale rappresenta continuità e cambiamento: la facciata antica, visibile dal canale, e il nuovo inserimento, un capolavoro di luce e dettagli.

Leggi tutto …PALAZZINA MASIERI

  • Visite: 1291

GOLD ENTRANCE

GOLD ENTRANCE

Residenziale 

GOLD ENTRANCE

Tema del progetto: Residenziale | Restauro

Anno: 2020

Luogo: Venezia, Castello

Committente: privato

Superficie: 38 m²

Progettazione: Barman architects

Team di progetto: Roberta Bartolone, Giulio Mangano

Impresa generale: IBR Costruzioni

Impianti MEP: CIEM Linea Luce S.N.C., Tecnologica S.A.S.

Illuminazione: Linea Light Group, Stilnovo

Arredi: ARREDAMENTI S31

Stato: Realizzato

Fotografo: Fabio Purgino

IL NOSTRO OBIETTIVO

Il progetto rinnova un appartamento con una sola camera da letto per offrire a un medico una casa compatta ma confortevole, restituendo vitalità agli interni veneziani.

IL CONTESTO

Collocato in un edificio tradizionale del XIX secolo, a pochi passi dal ponte di Rialto, l’intervento ha interessato l’interno dell’abitazione.

IL PROGETTO

L’interior design mira a ottimizzare la distribuzione degli spazi nella ridotta superficie dell’appartamento.

Materiali e geometrie dell’ingresso
  Il cuore del progetto è l’ingresso: pannelli laminati color oro chiaro rivestono soffitto e pareti, diventando l’elemento di forza dell’intero appartamento.

Illuminazione naturale in una calle stretta
  Posto in una calle veneziana molto stretta, l’appartamento necessita di massimizzare la luce naturale. Per compensare questa limitazione, si privilegiano materiali riflettenti che amplificano l’illuminazione artificiale.

Espansione visiva degli spazi
  I soffitti sono stati demoliti per mettere a vista le travi lignee originali, mentre l’apertura fra zona giorno e zona notte è stata ampliata, così da dilatare percettivamente gli ambienti.

In sintesi, l’intervento restituisce nuova vita a un piccolo appartamento veneziano, coniugando comfort, eleganza e rispetto del contesto storico.

  • Interno dorato del progetto Gold‑En‑Trance, Barman Architects, Venezia

    Gold‑En‑Trance – Interni dorati a Venezia

  • Interno dorato con lavabo dorato – Gold‑En‑Trance, Venezia

    Gold‑En‑Trance – Dettaglio lavabo dorato

  • Volta interna dorata e pavimento in terrazzo – Gold‑En‑Trance, Venezia

    Gold‑En‑Trance – Volta dorata e pavimento terrazzo

  • Interno con travi a vista e zona pranzo – Gold‑En‑Trance, Venezia

    Gold‑En‑Trance – Interno con travi a vista

  • Interno con armadi bianchi e travi a vista – Gold‑En‑Trance, Venezia

    Gold‑En‑Trance – Interno con armadi bianchi

  • Dettaglio del pavimento in terrazzo – Gold‑En‑Trance

    Gold‑En‑Trance – Dettaglio pavimento terrazzo

  • Interno con pareti bianche e porta – Gold‑En‑Trance, Venezia

    Gold‑En‑Trance – Interno completo a Venezia

  • Gold Entrance Section Barman Architects

  • Gold Entrance Axo Barman Architects

Leggi tutto …GOLD ENTRANCE

  • Visite: 478

NEW FONDAZIONE Di VENEZIA headquarters

NUOVA SEDE DELLA FONDAZIONE DI VENEZIA

Residenziale | Restauro

NUOVA SEDE
DELLA FONDAZIONE DI VENEZIA

Tema del progetto: Uffici e Sede | Restauro

Anno: 2022

Luogo: Palazzo Flangini, Venezia

Committente: Fondazione di Venezia

Proprietà del sito: privato

Superficie: 600 m²

Progettazione: Barman architects

Team di progetto: Roberta Bartolone, Giulio Mangano

3D e render: Claudio Canesso

Collaboratori: Carlo Baldin

Stato: Progetto completato

IL NOSTRO OBIETTIVO

Il progetto prevede la rifunzionalizzazione interna del palazzo storico, Palazzo Flangini, per ospitare la nuova sede della Fondazione di Venezia.

Mappa della città di Venezia con localizzazione di Palazzo Flangini

IL CONTESTO

Palazzo Flangini si trova a Venezia, nel sestiere di Cannaregio, con la facciata principale affacciata sul Canal Grande. L’edificio, realizzato nel 1700 dall’architetto Giuseppe Sardi, è caratterizzato da una marcata verticalità e da un’asimmetria di facciata. La storia racconta che la famiglia Flangini non riuscì mai ad acquisire l’altra ala del palazzo; per questo la facciata è così iconica. È impreziosita da monofore e quadrifore e da un ampio portale ad arco sormontato da due figure maschili scolpite.

  • Render della sala conferenze al primo piano con travi a vista, Fondazione Venezia

    Fondazione Venezia Aula Piano Primo Render

  • Render dell’ingresso principale con pareti in pietra, Fondazione Venezia

    Fondazione Venezia Ingresso Principale Render

IL PROGETTO

L’intervento mira a mettere in risalto gli elementi dell’architettura veneziana attraverso un linguaggio contemporaneo, instaurando un dialogo vivo tra epoche e tradizioni e preservando al contempo il valore storico‑culturale dell’edificio.

Il progetto soddisfa le esigenze funzionali principali cercando di evitare interventi costruttivi invasivi, privilegiando soluzioni architettoniche reversibili. Un mix versatile di arredi rafforza il dialogo con il contesto.

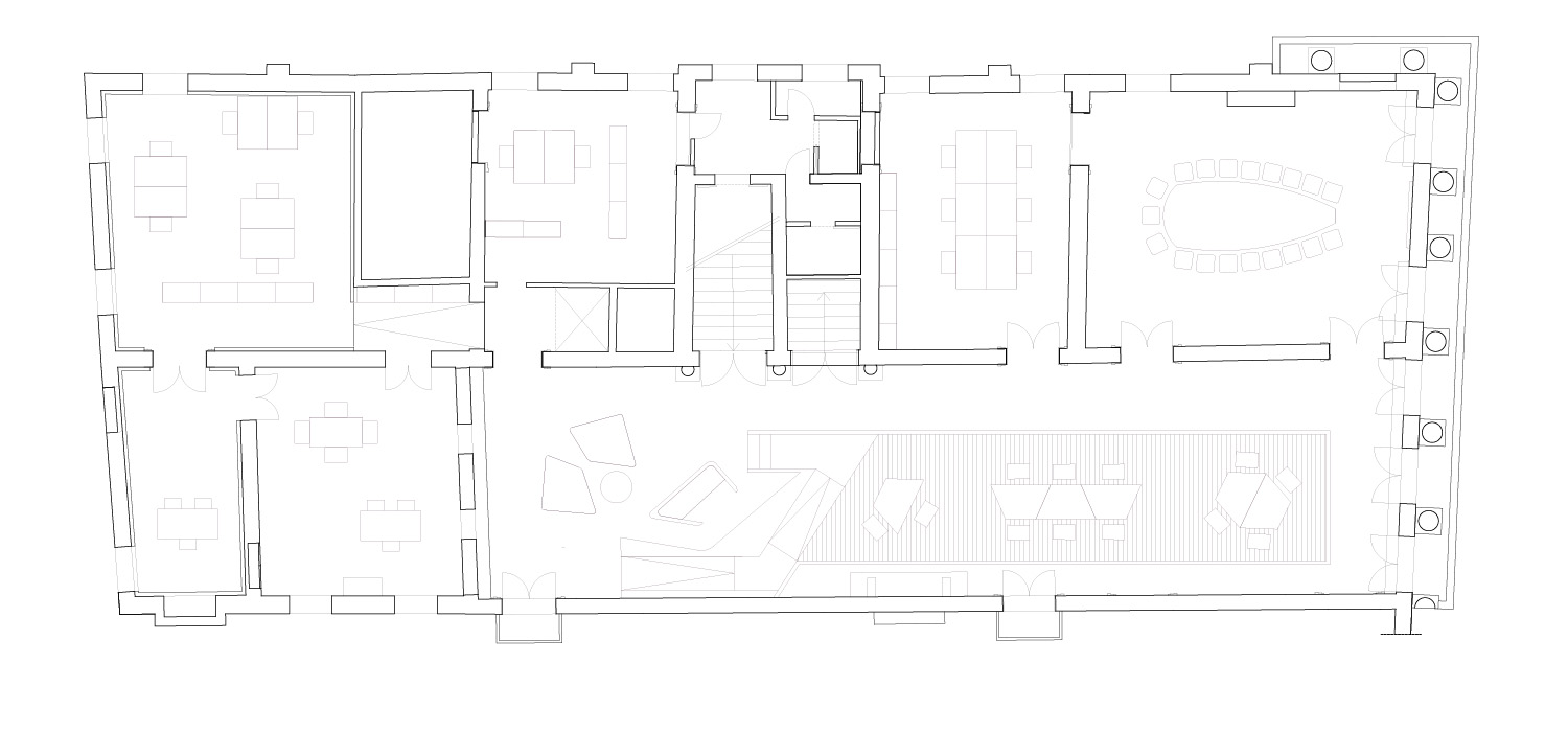
Pianta architettonica del piano terra di Palazzo Flangini, Venezia

Project plan, ground floor

Fotografia reale dell’ingresso monumentale con colonne, Palazzo Flangini

L’androne d’ingresso è delimitato da una parete a specchio che amplifica la percezione dello spazio ed enfatizza le quattro colonne in pietra dell’atrio. La parete separa l’ingresso dalla nuova sala conferenze, realizzata su una pedana rialzata destinata a varie attività. La pedana integra sedute mobili che, se non necessarie, possono essere facilmente rimosse e riposte in un locale di servizio.
La pedana è inscritta entro una parete longitudinale curva che dialoga con lo scalone monumentale, offrendo scorci dallo scalone verso lo spazio multifunzionale.

Diagramma 3D del livello terra della Fondazione Venezia, progetto Barman Architects

Qui l’arredo è disposto per creare spazi di lavoro sia individuali che collettivi, garantendo flessibilità d’uso e continuità con il carattere storico del palazzo.

  • Render della lounge al piano terra della Fondazione Venezia, progetto Barman Architects

    Fondazione Venezia Aula Piano Primo Render

  • Render della sala conferenze con arredi metallici, Fondazione Venezia

    Fondazione Venezia Ingresso Principale Render

Al primo piano l’arredo è organizzato per creare spazi distinti destinati sia al lavoro individuale sia a quello collettivo.

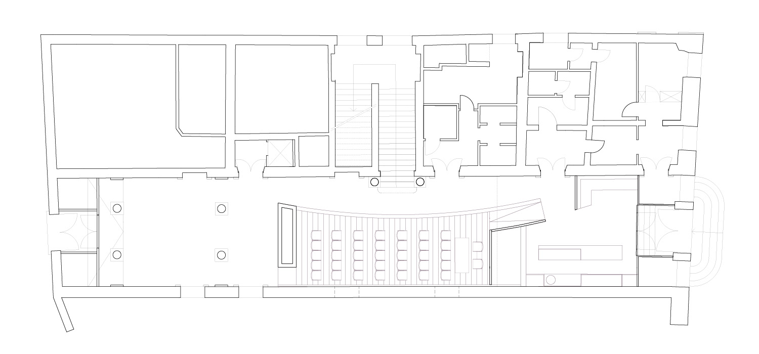
  • Pianta architettonica del primo piano, Fondazione Venezia

    Fondazione Venezia Aula Piano Primo Render

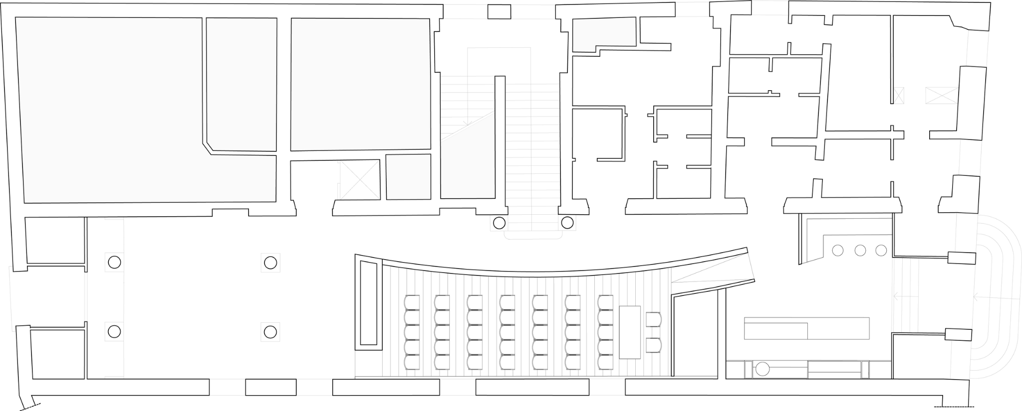
  • Diagramma 3D del primo piano con arredi e suddivisioni funzionali, Fondazione Venezia

    Fondazione Venezia Ingresso Principale Render

Project plan, first floor

Leggi tutto …NEW FONDAZIONE Di VENEZIA headquarters

  • Visite: 566

APPARTAMENTO PRIVATO

APPARTAMENTO PRIVATO

Residenziale

APPARTAMENTO PRIVATO

Tema: Residenziale

Anno: 2024

Luogo: Venezia, Sant’Elena

Committente: privato

Impresa generale: Marino Pinato

Porta metallica: Arredamenti S31

Finiture pastellone: Vianello srl

Restauro pavimentazione: Giuseppe Tonini,  Elisabetta  Longega

Impianti MEP: M&P Impianti snc

Arredi: Plinio il Giovane, GPS Inox

lluminazione: Artemide, Stilnovo

Riscaldamento: Hotwave

Collaboratori: Enrico Rocelli, Giovanni Segatto

Stato: Realizzato

IL NOSTRO COMPITO

Restauro e interior design di un piccolo appartamento privato.

IL CONTESTO

L’unità si trova al secondo piano di un edificio del XX secolo, nel quartiere di Sant’Elena, a Venezia.

IL PROGETTO

L’obiettivo principale è creare uno spazio funzionale che soddisfi le esigenze del proprietario e, al contempo, risulti visivamente gradevole, rispecchiando stile e preferenze personali.

Colore e dettagli
  L’uso del colore e di elementi caratterizzanti, come la porta metallica, permette di generare un ambiente vivace e armonioso.

“Ingresso verde”
  L’ingresso, enfatizzato dalla porta a specchio, moltiplica le percezioni e aumenta la complessità spaziale. L’interior design mira a evocare emozioni, equilibrio e armonia visiva.

Valorizzazione del preesistente
  Nel processo progettuale si è scelto di conservare e restaurare la pavimentazione novecentesca, valorizzando la storia del patrimonio edilizio di questo quartiere veneziano.

  • Ingresso cabina armadio laccato verde scuro

    Goldentrance Cabina Verde

    © Giuseppe Miotto / Marco Cappelletti Studio

  • Camera con letto singolo e armadi verdi lucidi a specchio

    Goldentrance Camera Specchio 1

    © Giuseppe Miotto / Marco Cappelletti Studio

  • Goldentrance Camera Specchio 2

    © Giuseppe Miotto / Marco Cappelletti Studio

  • Cucina con isola in metallo e pavimento esagonale

    Goldentrance Cucina Metallo

    © Giuseppe Miotto / Marco Cappelletti Studio

  • Tenda beige in camera da letto con trave a vista

    Goldentrance Dettaglio Tendaggio

    © Giuseppe Miotto / Marco Cappelletti Studio

  • Poltrona gialla su pavimento esagonale in cotto e cemento, finestra con vista

    Goldentrance Poltrona Gialla Esagoni

    © Fabio Purgino

  • Radiatori rossi vicino a finestra con vista su edificio in mattoni

    Goldentrance Radiatori Finestre Mattone

    © Fabio Purgino

  • Camera con letto singolo e armadi verdi lucidi a specchio

    Goldentrance Specchio Armadio

    © Giuseppe Miotto / Marco Cappelletti Studio

  • Radiatori rossi a colonna verticale in metallo a vista

    Goldentrance Termoconvettori Rossi

    © Fabio Purgino

  • Planimetria Sant Elena Barman Architects

  • Sezione Sant Elena Barman Architects

Leggi tutto …APPARTAMENTO PRIVATO

  • Visite: 397

INSTALLATION UPCYCLING

INSTALLAZIONE UPCYCLING

Urban Design | Installation Upcycling

INSTALLATION UPCYCLING

Tema del progetto: Progettazione Urbana  Installazione Upcycling

Anno: 2018 – 2021

Luogo: Corbola, Italia

Superficie: 100 m²

Committente: pubblico

Progettazione: Barman architects

Team di progetto: Roberta Bartolone, Giulio Mangano
Collaboratori: Filippo Andrighetto, Carlo Baldin, Leonardo Giacalone, Tommaso Spagnolli, Tomas Ambra, Mattia Deon

Programma MEPART: Heritage  Asset  Management  S.B.R.L., Spin‑Off Università IUAV

Fotografo: Fabio Purgino


PRIMA INSTALLAZIONE

Titolo: The Port and the Fall of Icarus – Padiglione Work, Body, Leisure

Tema: Biennale Architettura 2018

Anno: 2018

Luogo: Venezia, Riva Sette Martiri

Superficie: 100 m²

Progetto: Hamed Khosravi, Taneha Kuzniecow Bacchin, Filippo  LaFleur + APML‑Architetti Pedron/La Tegola

Fotografo: Igreg Studio

Stato: Realizzato

IL NOSTRO OBIETTIVO

Prolungare il ciclo di vita del Padiglione Icarus oltre la 16ª Mostra Internazionale di Architettura – La Biennale di Venezia 2018, trasformandolo in un museo nel Comune di Corbola.

IL CONTESTO

The Port and the Fall of Icarus faceva parte del programma esteso del Padiglione Olandese Work, Body, Leisure, curato da Marina  Otero  Verzier. Includeva un’installazione interna al padiglione e una struttura pubblica alla Riva dei Sette  Martiri, progettata da Hamed  Khosravi, Taneha  Kuzniecow  Bacchin e Filippo LaFleur.

L’installazione, composta da moduli in pannelli sandwich rivestiti in acciaio Corten, era destinata alla discarica al termine della Biennale; l’intervento l’ha invece rimontata come museo a Corbola, divenendo il progetto pilota del programma di upcycling MEPART promosso da Heritage  Asset  Management  S.B.R.L.

IL TEMA

Ogni anno le mostre temporanee di arte e architettura generano tonnellate di rifiuti da costruzione e demolizione. MEPART si pone l’obiettivo di riutilizzare i materiali originari delle installazioni ottenendo manufatti di pari o maggior valore.
Come funziona?

Catalogo riutilizzabile: prima della realizzazione, i progettisti compilano un catalogo dei materiali e lo caricano sul portale MEPART, ampliando il database disponibile.

Matching domanda‑offerta: clienti e progettisti locali consultano il catalogo per ridefinire la struttura in un nuovo sito, evitando magazzinaggio e trasporti superflui.

Benefici sociali: le installazioni rigenerate possono innescare coesione sociale e nuove attività urbane, riducendo il consumo eccessivo di risorse e promuovendo un futuro più sostenibile.

In sintesi, l’upcycling del Padiglione Icarus dimostra come le architetture temporanee possano diventare risorse permanenti, contribuendo a diminuire l’impatto ambientale degli eventi espositivi e a valorizzare il territorio che le accoglie.

Upcycling process diagram

IL PROGETTO

Al termine della Biennale i pannelli sono stati smontati e catalogati. La proposta progettuale prevede di ricostruire l’installazione con un nuovo layout, in base alle richieste del Comune di Corbola. The Port and the Fall of Icarus è stata rifunzionalizzata come un piccolo museo all’aperto, situato nei pressi dell’area archeologica dell’antica Via Popilia romana.

  • Icarus installation front

    Icarus Installation Front

  • Icarus Installation Gate View

  • Icarus installation side view

    Icarus Installation Side View

  • Icarus installation tree angle

    Icarus Installation Tree Angle

  • Installation on site

    Installation On Site

  • Materials transport boat

    Materials Transport Boat

  • Installation Upcycling Axonometry Barman Architects

  • Installation Upcycling Axonometry 1 Barman Architects

  • Installation Upcycling Axonometry 2 Barman Architects

  • Installation Upcycling Plan Barman Architects

Leggi tutto …INSTALLATION UPCYCLING

  • Visite: 348