Skip to main content

Progetti

RISTRUTTURAZIONE DI APPARTAMENTO A VENEZIA

RISTRUTTURAZIONE DI APPARTAMENTO A VENEZIA

Residenziale | Restauro

RISTRUTTURAZIONE DI APPARTAMENTO A VENEZIA
 RISTRUTTURAZIONE DI APPARTAMENTO A VENEZIA

Tema: Residenziale | Restauro

Anno: 2020

Luogo: Venezia, San Polo

Committente: privato

Superficie: 70 m²

Progettazione: Barman architects

Team di progetto: Roberta Bartolone, Giulio Mangano

Collaboratori: Carlo Baldin, Ana Laura Solano Rodriguez

Stato: Progetto completato

IL NOSTRO OBIETTIVO

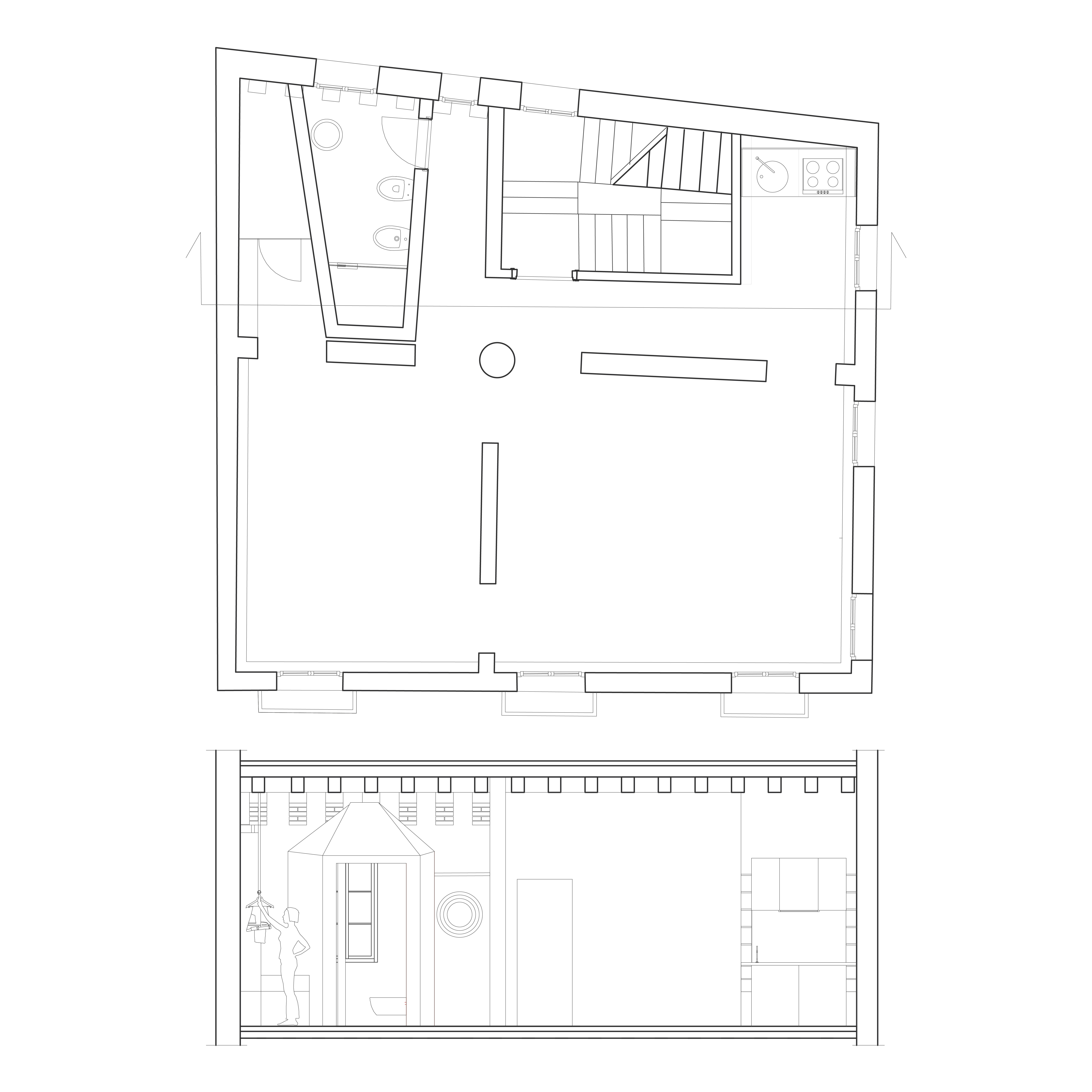
La richiesta del committente era di migliorare funzionalità e fruibilità degli spazi domestici mediante la realizzazione di un nuovo locale di servizio.

La costruzione di un bagno ha offerto l’opportunità di innestare un nuovo volume, isolato e facilmente riconoscibile rispetto al contesto in cui si inserisce.

IL CONTESTO

Il nuovo bagno si distingue per forma e materiali, diventando l’elemento visivo principale dello spazio e instaurando un dialogo con i "barbacani", i muri, gli architravi in pietra, le superfici in marmorino e le travi in ferro, elementi preesistenti dell’appartamento.

IL PROGETTO

Il volume del bagno, evidenziato dal contrasto materico e formale, interagisce con i caratteri originari dell’abitazione — barbacani, murature, architravi lapidei, finiture in marmorino e travi metalliche — valorizzando la stratificazione storica e conferendo una nuova identità agli spazi.

  • Interno con parete in mattoni a vista, finestra in legno e oblò

    Interno con parete in mattoni a vista, finestra in legno e oblò

  • Plan Section Apartment Barman Architects

  • Bathroom Volume Axonometry Barman Architects

  • Structure Volume Barman Architects

VOLUME

All the new architectural elements are designed to generate meaningful relationships between the sight of what exists and what is added.

The external cladding of the new bathroom, in brass-colored metallic laminate, reflects the natural and artificial light of the room.

Dettaglio assonometrico del volume nel contesto murario

ARREDI

All the new architectural elements are designed to generate meaningful relationships between the sight of what exists and what is added.

The external cladding of the new bathroom, in brass-colored metallic laminate, reflects the natural and artificial light of the room.

Selezione di materiali e superfici per l’appartamento

FURNITURE

La cabina armadio a giorno adiacente al nuovo volume è realizzata in legno con inserti in ottone ed è articolata in modo da sfruttare appieno le generose altezze interne dell’ambiente. Il disegno sartoriale riservato a un’area di servizio come il bagno dimostra che l’intervento sull’antico può — e dovrebbe — essere approfondito anche in occasione di minimi adeguamenti funzionali, trasformandosi in un’occasione progettuale.

  • Wardrobe Barman Architects

  • Kitchen Axonometry Barman Architects

Leggi tutto … RISTRUTTURAZIONE DI APPARTAMENTO A VENEZIA

  • Visite: 440

Conservazione e restauro del giardino storico

Conservazione
e restauro
del giardino storico

Residenziale | Spazio esterno

Conservazione
e restauro
del giardino storico
Conservazione e restauro del giardino storico

Tema del progetto: Residenziale | Spazio esterno

Anno: 2022 – 2023

Luogo: Giudecca, Venezia

Committente: privato

Superficie area: 8 000 m²

Progettazione: Barman architects

Team di progetto: Roberta Bartolone, Giulio Mangano

Collaboratori: Carlo Baldin, Leonardo Giacalone

Stato: Progetto completato

IL NOSTRO OBIETTIVO

Il progetto affronta il tema del restauro e della valorizzazione dei giardini storici. La strategia d’intervento si basa sulla conservazione delle strutture e degli elementi originari dello spazio aperto. Allo stesso tempo, introduce nuovi inserti contemporanei — vegetazionali o architettonici — che permettono di creare ambienti diversificati e punti di vista inediti.

Mappa storica di Venezia disegnata da Ludovico Ughi nel 1729

IL CONTESTO

Il progetto affronta il tema del restauro e della valorizzazione dei giardini storici. La strategia d’intervento si basa sulla conservazione delle strutture e degli elementi originari dello spazio aperto. Allo stesso tempo, introduce nuovi inserti contemporanei — vegetazionali o architettonici — che permettono di creare ambienti diversificati e punti di vista inediti.

Ludovico Ughi, Venezia; pianta topografica della laguna, 1729 - Project Site in red

Ludovico Ughi, Venezia – pianta topografica della laguna, 1729 – area di progetto in rosso

Nel corso degli anni gli usi del suolo alla Giudecca sono mutati. Dalle carte storiche si nota il progressivo diradarsi delle aree verdi: prima dell’industrializzazione del 1900 l’isola era punteggiata di campi e aziende agricole, mentre dai primi decenni del XX secolo ha accolto fabbriche e residenze. L’area di progetto costituisce dunque uno degli ultimi esempi di verde storico dell’isola e va tutelata quale testimonianza degli antichi usi e della morfologia della Giudecca.

IL PROGETTO

Partendo dallo studio delle partizioni storiche del giardino, è emersa l’esistenza di due percorsi principali che, in passato, suddividevano lo spazio in tre settori. Sebbene una delle due tracce sia scomparsa, il progetto ne preserva la geometria originaria, impostata su simmetrie tipiche del giardino all’italiana.

L’intervento arricchisce il giardino in termini di biodiversità, introducendo alberi e arbusti autoctoni a bassa manutenzione, e valorizza le strutture architettoniche – percorsi e arredi – esistenti.

È prevista la realizzazione di una piscina come nuovo innesto nel contesto storico: la vasca, sollevata rispetto alla quota del prato, è incastonata in una piattaforma‑solarium. Sul retro, un muro con tre archi rivestiti di lastre in pietra naturale funge da fondale scenografico e crea uno spazio ideale per opere d’arte private. L’insieme richiama l’architettura borghese dei primi del Novecento in Italia, come Villa Necchi Campiglio o il vicino giardino della manifattura Fortuny.

  • Masterplan

    Masterplan

    Masterplan

  • Project zoom, swimming pool and backdrop wall

    Project zoom, swimming pool and backdrop wall

  • Project zoom, garden entrance

    Project zoom, garden entrance

Leggi tutto …Conservazione e restauro del giardino storico

  • Visite: 483

OUT OF THE BLUE

OUT OF THE BLUE

Progettazione Urbana | Installazione Temporanea

OUT OF THE BLUE
OUT OF THE BLUE

Tema: Progettazione Urbana | Installazione Temporanea

Anno: 2019

Committente: Comune di Venezia

Luogo: Venezia, Arsenale Nord

Proprietà del sito: Demanio dello Stato

Superficie area: 170 m²

Progettazione: Barman architects con Roberta Martel e Filippo Andrighetto

Team di progetto: Roberta Bartolone, Giulio Mangano, Roberta Martel, Filippo Andrighetto

Stato: Realizzato

IL NOSTRO OBIETTIVO

“Out of the Blue” è un’installazione temporanea realizzata in un’area all’aperto di valore storico‑paesaggistico, affacciata sulla laguna di Venezia e sull’isola di Murano. Il progetto mira a valorizzare l’ingresso nord dell’Arsenale in occasione del Salone Nautico di Venezia 2019. “Out of the Blue” riflette il senso del luogo – la laguna veneziana, il suo paesaggio e la sua peculiare palette cromatica.

IL CONTESTO

Collocata lungo uno dei percorsi pedonali che conducono all’Arsenale Nord, l’installazione sorge sul retro delle Tese, un complesso di magazzini storici uniti da ampi archi monumentali. Questi edifici testimoniano la secolare supremazia militare della Serenissima e il cuore pulsante della sua industria navale. L’area di progetto offre un panorama unico sulla laguna e su Murano, incastonandosi nel contesto storico dell’Arsenale nel centro di Venezia.

IL PROGETTO

Prima dell’intervento, l’area verde versava in stato di abbandono. Con un budget pressoché nullo, il progetto punta a trasformare questo spazio di passaggio in un belvedere lontano dalle folle turistiche. L’intervento si compone di due elementi essenziali:

Uno specchio che riveste la facciata di un edificio del XX secolo non restaurato, inclinato in modo da riflettere il paesaggio lagunare.

Una piazza circolare di sabbia blu al cui interno sono collocate due sedute in pietra d’Istria recuperate dall’Arsenale.

La combinazione dello specchio e del cerchio blu crea un punto d’osservazione contemplativo, capace di amplificare la relazione visiva e sensoriale con la Laguna di Venezia.

  • Facciata riflettente al tramonto con scorcio lagunare

    Venezia Out Of The Blue Facciata Tramonto

  • Vista ravvicinata della pietra su fondo blu cobalto

    Venezia Out Of The Blue Dettaglio Pietra 1

  • Pietra su fondo sabbioso blu – dettaglio materico

    Venezia Out Of The Blue Dettaglio Pietra 2

  • Albero riflesso su facciata a specchio dell’installazione

    Venezia Out Of The Blue Facciata Specchiante Albero

  • Barche e laguna riflessi su facciata specchiante

    Venezia Installazione Out Of The Blue Cantiere

  • Riflesso del paesaggio lagunare sulla superficie specchiante

    Venezia Out Of The Blue Riflessi Laguna 1

  • Barche e laguna riflessi su facciata specchiante

    Venezia Out Of The Blue Riflessi Laguna 2

  • Diagramma tridimensionale dell’installazione

    Venezia Out Of The Blue Assonometria

Leggi tutto …OUT OF THE BLUE

  • Visite: 338

Concorso internazionale di progettazione “Waterproof”

Concorso internazionale di progettazione “Waterproof”

Cultura | Competizione internazionale

Concorso internazionale di progettazione “Waterproof”
Concorso internazionale di progettazione “Waterproof”

Project Theme: Culture | International competition

Project Year: 2017

Competition Organizers: Venice Industrial Federation - Confindustria

Location: Venice, Grand Canal, Santa Croce 1957

Building Owner: IUAV University

Site Dimension: 1970 Sqm

Building Dimension: 3600 Sqm

Design: Barman architects with Claudio Canesso

Project Team: Roberta Bartolone, Claudio Canesso, Giulio Mangano

3D Models, Renders: Giovanni Bellanca, Claudio Canesso

Patronage: Università IUAV di Venezia

Supporters: Ance Venezia

Partners: Eurofibre, Fiel Fornasier, Lunardelli, Oikos, Sacaim, Zintek

Media partner: The Plan

Scientific coordination: Pop Lab

Status: Second Prize Award

IL NOSTRO OBIETTIVO

Il concorso internazionale di progettazione “The Waterproof” si propone di:

  • Avviare una riflessione sul tema della manifattura digitale applicata all’architettura, stimolando l’adozione di un linguaggio costruttivo condiviso tra aziende e professionisti.
  • Cogliere l’opportunità di innovare prodotti e processi grazie al know‑how delle storiche imprese veneziane, in grado di supportare i progettisti durante l’intero iter progettuale.
  • Immaginare un sistema coerente di macro‑strategie, capaci di dialogare con l’edificio esistente e il tessuto storico circostante, e di micro‑soluzioni tecnologiche e costruttive, tutte riconducibili a un progetto unitario e facilmente realizzabili.
  • Ottenere idee per un recupero innovativo di un edificio storico veneziano, mantenendo un dialogo rispettoso con la preesistenza. L’aggiunta di un nuovo elemento costruttivo dovrà conferire all’edificio un aspetto unico, simbolo della sinergia tra storia e contemporaneità.
  • Promuovere un nuovo uso di uno spazio accademico, che diventi punto di riferimento per studenti e cittadini a Venezia. Questo luogo innovativo dovrà essere esempio di intervento flessibile, capace di adattarsi ai cambiamenti climatici e alle sfide ambientali globali.

Questo concorso ci permette di affrontare una questione cruciale nella nostra visione architettonica: qualsiasi intervento in un contesto storico deve configurarsi come un processo sostenibile che coniughi conservazione, tecnologia e linguaggio, nonché una pratica responsabile

  • Ca Tron City Plan Barman Architects

  • Facciata di Palazzo Ca’ Tron sul Canal Grande

    Fondazione Venezia Ingresso Principale Render

IL CONTESTO

Palazzo Ca’ Tron, storico edificio affacciato sul Canal Grande, è il risultato di forme e aggiunte che, nel tempo, ne hanno modificato e innovato l’aspetto originario. Su piccola scala, questo palazzo testimonia la consueta vocazione di Venezia a farsi laboratorio di sperimentazione per il rinnovamento delle architetture del passato.

Scalone monumentale all’interno di Ca’ Tron

IL TEMA

Sebbene Venezia sia spesso considerata un bastione di estremismo conservativo, la sua storia artistico‑culturale racconta tutt’altro.

È un centro di straordinario valore storico che accoglie, a distanze fisiche minime, stili e linguaggi diversi: da qui nasce la forza della sua immagine. Venezia sa rinnovarsi e integrare testimonianze di epoche differenti senza perdere valore.

Il progetto per Ca’ Tron rappresenta l’occasione per elaborare strategie capaci di tessere nuove relazioni tra edificio e contesto, dimostrando come il riuso del patrimonio storico possa generare «architetture migliori», in grado di rispondere alle esigenze del presente senza tradire l’autenticità dei luoghi.

  • Scalone monumentale all’interno di Ca’ Tron

    Scalone monumentale all’interno di Ca’ Tron

  • Ingresso ridisegnato al sito IUAV di Ca’ Tron

    View of the new entrance to the site

    View of the new entrance to the site

IL PROGETTO

Il progetto immagina innanzitutto un futuro programmatico, ancor prima che spaziale.

La riprogettazione del nuovo ingresso diventa l’occasione per aumentare la fruibilità dell’edificio, concependolo non solo come sede universitaria, ma come estensione dello spazio pubblico della città.

Le ali del palazzo, a tutti i livelli, sono predisposte per ospitare ambienti strettamente dedicati alla didattica e ai servizi ad essa connessi.

  • Vista della corte interna con architettura storica e contemporanea

    Venezia Water Proof Vista Corte Interna

  • Ca Tron Plan Section Barman Architects

  • Ca Tron Ground Floor Barman Architects

Storicamente adibite a spazi di intrattenimento, le sale e il giardino si prestano oggi a ospitare attività quali mostre, conferenze e piccole performance. Pur non essendo direttamente legate alla didattica, rientrano nell’offerta culturale più ampia della città.

All’ultimo piano è prevista una piccola foresteria per accogliere ricercatori e studenti che usufruiscono dei numerosi programmi di scambio universitario.

L’idea è che gli studenti del nuovo centro didattico temporaneo possano usufruire dello spazio esterno, luogo di relazione e socialità condiviso fra studenti di diverse università.

In quest’ottica si è deciso di eliminare la recinzione esistente e rendere il fronte ovest dell’edificio il più permeabile possibile.

Diagramma del processo progettuale

Un modello che consente di aumentare la fruibilità dell’edificio durante il giorno e, al contempo, di alleggerirne i costi di gestione, destinando temporaneamente parte degli spazi ad altre istituzioni o partner.

Il tempo di costruzione, concepito come parte integrante del progetto, consente l’utilizzo dell’edificio per l’intera durata del cantiere.

Si tratta di un concorso di idee e di una visione di città che delinea il futuro di una Venezia possibile.

  • Ca Tron Events Setting Barman Architects

  • Ca Tron Exhibition Setting Barman Architects

  • Ca Tron Exhibition Setting Plan Elevation Barman Architects

  • Ca Tron Hall Platform Barman Architects

Leggi tutto …Concorso internazionale di progettazione “Waterproof”

  • Visite: 471

MERCATO DEL PESCE DI CABO LEDO

MERCATO DEL PESCE DI CABO LEDO

Urban Design

MERCATO DEL PESCE DI CABO LEDO
MERCATO DEL PESCE DI CABO LEDO

Tema del progetto: Progettazione Urbana

Anno: 2015

Luogo: Cabo Ledo, Angola

Committente: Gabinete de Gestão do Pólo de Desenvolvimento Turístico de Cabo Ledo

Superficie lotto: 1 080 m²

Superficie edificio: 550 m²

Progettazione: Barman architects con Idiogramma Arquitectura

Team di progetto: Roberta Bartolone, Irene Cogliano, Epandi Antonia Dos Santos Vandunem

3D & render: Giorgia Magrì

Stato: Progetto completato

IL NOSTRO COMPITO

Il progetto rientra in un ampio programma di interventi promosso dal Pólo de Desenvolvimento Turístico de Cabo Ledo (P.D.T.).

 MERCATO DEL PESCE DI CABO LEDO

IL CONTESTO

Cabo Ledo è una comuna del Municipio di Luanda situata sulla costa del Parque Nacional da Quiçama. L’obiettivo generale del piano promosso dal Pólo de Desenvolvimento Turístico de Cabo Ledo è trasformare il villaggio in un nuovo polo turistico.

Fra le principali azioni del P.D.T. figura la riqualificazione dell’attuale Bairro dos Pescadores. Il compito del Plano Piloto è valorizzare le attività locali, come la pesca, favorendo l’interazione tra abitanti e visitatori.

Scalone monumentale all’interno di Ca’ Tron

IL PROGETTO

Il nuovo mercato sorge su un lotto che potrebbe allagarsi durante l’alta marea; per questo la zona vendita è sollevata su un podio, raggiungibile tramite rampe e gradini. Al livello del terreno si trova un ampio spazio coperto all’aperto, aperto alla vista del mare.

Al piano superiore, un’ampia terrazza è attrezzata con tavoli, sedute e pensiline inclinate e colorate che offrono riparo a chi desidera gustare il pesce cucinato nel ristorante situato nel volume in fondo alla via.

Il corpo che ospita il ristorante si sviluppa su due livelli.

La facciata principale segue la curvatura della strada ed è decorata con motivi geometrici tipici delle texture africane.

La ringhiera della terrazza è composta da pannelli in tessuto intrecciato, anch’essi decorati con motivi locali.

I colori della sabbia, le geometrie delle decorazioni e la permeabilità visiva degli spazi caratterizzano i volumi semplici del nuovo mercato di Cabo Ledo.

  • Cabo Ledo Fish Market Barman Architects

  • Cabo Ledo Fish Market Axo Barman Architects

  •  Illustrazione degli interni del mercato con decorazioni e attività quotidiane

    Illustrazione degli interni del mercato con decorazioni e attività quotidiane

  • Rappresentazione della zona ombreggiata del mercato con attività commerciali

    Rappresentazione della zona ombreggiata del mercato con attività commerciali

  • Vista prospettica dell’edificio esterno del mercato del pesce di Cabo Ledo

    Vista prospettica dell’edificio esterno del mercato del pesce di Cabo Ledo

  • Cabo Ledo Fish Market Plan Barman Architects

  • Cabo Ledo Fish Market Plan G Barman Architects

Leggi tutto …MERCATO DEL PESCE DI CABO LEDO

  • Visite: 378